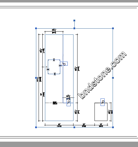
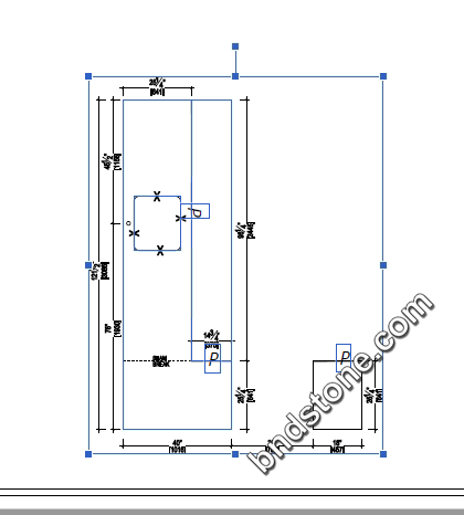
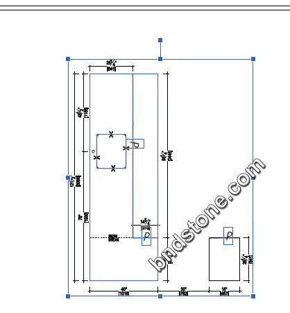
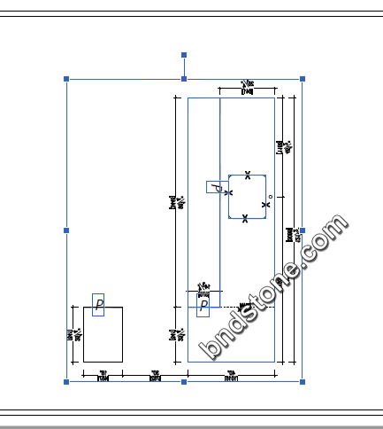
1. 全部选中

2. 可以整体移动

3. 变大/变小
[全选] – [SHIFT + 箭头图标]
4. 水平翻转
[全选] – [右键] – [水平翻转]



5.旋转90度
[全选] – [SHIFT + 圆形图标]




6. 合并pdf


七. PDF 添加 页眉和页脚
7-1. [编辑PDF]

7-2. [页眉和页脚] – [添加]- [右侧页脚]-[插入页码]-[应用到多个页面]-[确定]





7-3. 已经成功添加页脚

7-4. 修改页脚字体


7-5. 页脚字体修改成功

八. PDF 插入页面
8-1. [编辑PDF] – [左上角 页面缩略图]


8-2. [右键点击 第 23 页] – [插入页面] – [空白页面] – [位置:之后] – [确定]



九. PDF 批量修改文字
9-1. [编辑PDF] – [左上角 放大镜] – [查找] – [替换为] – [确定]



9-2. 已经替换成功了
